- หน้าแรก
- ทั่วประเทศญี่ปุ่น เช่าที่พักสำหรับวันหยุด
- คินกิ (นอกเหนือจากโอซาก้า) เช่าที่พักสำหรับวันหยุด
- เกียวโต เช่าที่พักสำหรับวันหยุด
- กิออน · ฮิกาชิยามะ เช่าที่พักสำหรับวันหยุด
- 2254
ทาวน์เฮาส์มาจิยะที่มีสไตล์และอบอุ่น ให้คุณได้ใช้ชีวิตราวกับเป็นคนท้องถิ่นในย่านเกอิชาของเกียวโต
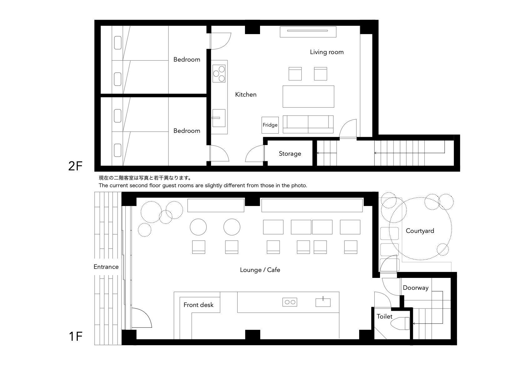
ที่พักแบบเช่าทั้งหลังที่สร้างใหม่ตั้งแต่ต้น โดยผสมผสานองค์ประกอบของบ้านแบบเกียวโตดั้งเดิมเข้ากับไลฟ์สไตล์สมัยใหม่อย่างลงตัวและมีเอกลักษณ์ พื้นที่ห้องพักรวมทั้งหมด 131 ตารางเมตร ออกแบบโดย Atelier Bow-Wow ซึ่งมีผลงานที่โดดเด่นเช่น สถานี Onomichi และการออกแบบร้าน Muji
รีวิว
สิ่งอำนวยความสะดวกและบริการ
ดูทั้งหมด| IN | 15:00~18:00 |
|---|---|
| OUT | 12:00 |
| จำนวนห้องพัก | 1 ห้อง |
| สัตว์เลี้ยง | ไม่อนุญาต |
| ลูกของคุณ | ได้ |
รูปถ่าย
ดูทั้งหมดประกาศจากทางสถานที่
【ประกาศแจ้งงานก่อสร้างบริเวณใกล้เคียง】
บริเวณใกล้โรงแรมของเรา มีกำหนดการก่อสร้างอาคารไม้หลังใหม่
รายละเอียดงานก่อสร้าง
・ระยะเวลา: ประมาณกลางเดือนพฤษภาคม 2026 – ประมาณปลายเดือนพฤศจิกายน (ตามกำหนดการ)
・วันทำงาน: เฉพาะวันธรรมดา
・เวลาทำงาน: ประมาณ 9:00–17:00
※กำหนดการอาจมีการเปลี่ยนแปลงตามสถานการณ์
ในช่วงเวลาก่อสร้าง อาจมีเสียงดังและแรงสั่นสะเทือนเกิดขึ้นในบางช่วงเวลา
อย่างไรก็ตาม คาดว่าโครงสร้างหลักของอาคารจะแล้วเสร็จประมาณช่วงฤดูร้อน หลังจากนั้นระดับเสียงรบกวนจะลดลงเมื่อเทียบกับก่อนหน้า
ขอความกรุณารับทราบล่วงหน้า และหวังเป็นอย่างยิ่งว่าจะได้รับการทำการจองจากท่าน
ที่พักขายดีที่สุด
ที่พักที่ได้รับคะแนนสูง
ที่พักแนะนำสำหรับฮันนีมูน
ที่พักชมใบไม้เปลี่ยนสี
ที่พัก ไม่รวมอาหาร
ที่พักสไตล์ญี่ปุ่นสำหรับการพักผ่อน
แนะนำที่พัก

เพลิดเพลินกับใจกลางกิออนของเกียวโตให้ลึกซึ้งยิ่งขึ้น
เพียง 1 นาทีเดินจากกิออนชิโจ และไม่เกิน 10 นาทีเดินจากคาวารามาจิ ทำเลนี้เหมาะสำหรับการท่องเที่ยวในย่านกิออน/คาวารามาจิ พนักงานต้อนรับที่ประจำอยู่จะช่วยสนับสนุนการเดินทางของคุณในเมืองเกียวโตที่เปลี่ยนแปลงอยู่เสมอ รวมถึงการจัดการจองอาหารและกิจกรรมต่าง ๆ

ห้องพักกว้างขวางพร้อมพื้นที่รวม 131㎡ ให้เช่าแบบส่วนตัว
ห้องพักชั้น 2, 3 และ 4 พร้อมอ่างอาบน้ำไม้ฮิโนกิทั้งหมดเป็นแบบส่วนตัว ตั้งอยู่ในย่านที่อยู่อาศัยของมิยากาวะโจ ทำให้คุณสามารถเพลิดเพลินกับความเงียบสงบอย่างน่าประหลาดใจแม้อยู่ใจกลางเมือง จากห้องนอน คุณสามารถเปิดม่านและมองลงไปยังถนนด้านหน้าเพื่อชมเกอิชาและไมโกะแห่งมิยากาวะโจได้
สิ่งอำนวยความสะดวกของที่พัก
- ห้อง
- บ่อน้ำพุร้อน・อ่างอาบน้ำ
- บริเวณโดยรอบและอื่น ๆ
ข้อมูลพื้นฐาน
| ภาษี | ■ภาษีที่พักของเมืองเกียวโต รวมอยู่ในราคาที่แสดงแล้ว ค่าที่พัก (ต่อคน ต่อคืน) ต่ำกว่า 6,000 เยน → 200 เยน ตั้งแต่ 6,000 เยน ถึงต่ำกว่า 20,000 เยน → 400 เยน ตั้งแต่ 20,000 เยน ถึงต่ำกว่า 50,000 เยน → 1,000 เยน ตั้งแต่ 50,000 เยน ถึงต่ำกว่า 100,000 เยน → 4,000 เยน ตั้งแต่ 100,000 เยนขึ้นไป → 10,000 เยน |
|---|---|
| ข้อมูลบัตรเครดิต | วีซ่า / มาสเตอร์การ์ด / เจซีบี / อเมริกัน เอ็กซ์เพรส / ไดเนอร์ส / บัตรเดบิต |
| สัตว์เลี้ยง | ไม่อนุญาต |
| อาหารเช้า | ไม่มีข้อมูลเกี่ยวกับอาหารเช้า |
| เด็ก ๆ | คุณสามารถเข้าพักได้ ※เนื่องจากการออกแบบและโครงสร้างของโรงแรมนี้ มีบางจุดที่อาจเป็นอันตรายสำหรับเด็ก เช่น บันได หรือช่องว่างบริเวณด้านบนของพื้นที่โถงสูงที่เปิดโล่งจากห้องนั่งเล่น หากมีเด็กเข้าพัก โปรดดูแลอย่างใกล้ชิด ทั้งนี้ หากเกิดอุบัติเหตุหรือการบาดเจ็บ ทางโรงแรมไม่สามารถรับผิดชอบได้ ขอความกรุณาโปรดทราบล่วงหน้า
นอกจากนี้ ภายในห้องและเฟอร์นิเจอร์ตกแต่งมีส่วนที่บอบบาง เช่น กระดาษตกแต่งสไตล์เกียวโต (เคียวคาราคามิ) และประตูโชจิ โปรดใช้ความระมัดระวังเป็นพิเศษ |
| รูมเซอร์วิส | ไม่สามารถใช้งานได้ |
| สิ่งอำนวยความสะดวกส่วนกลาง |
|
| สิ่งอำนวยความสะดวกและคุณสมบัติ |
|
| นวดเสริมความงาม | ไม่มี |
| ฟิตเนสยิม | ไม่มี |
| ห้องอาบน้ำส่วนตัว |
|
| ซาวน่า | ไม่มี |
| ออนเซ็นหินร้อน | ไม่มี |
| อื่นๆ | เช็คอิน เวลาทำการของแผนกต้อนรับคือ 9:00 - 18:00 หากท่านจะเดินทางมาถึงนอกเวลาทำการ กรุณาแจ้งเวลาโดยประมาณล่วงหน้าอย่างน้อย 2 วันก่อนวันเข้าพัก ไปยังช่องทางติดต่อที่ระบุไว้ในเอกสารยืนยันการจอง หากไม่ได้แจ้งภายในอย่างน้อย 2 วันก่อนวันเช็คอิน ทางที่พักอาจติดต่อกลับไปยังข้อมูลติดต่อที่ระบุไว้ตอนทำการจอง โปรดทราบล่วงหน้า |
รีวิว
เนื่องจากจำนวนรีวิวไม่ถึงตามที่กำหนด คะแนนรวมของสถานที่จึงไม่แสดง
*Reviews that have been translated from Japanese.*
*Showing only reviews from 一休.com (Japanese) and Yahoo!トラベル.*
ข้อมูลการเดินทาง
เกียวโต254 มิยากาวะซูจิ 2-โชเมะ เขตฮิงาชิยามะ เมืองเกียวโต
TEL:+81-90-6745-7263
ติดต่อผู้ดูแลสิ่งอำนวยความสะดวกโดยตรง
■การเดินทางด้วยระบบขนส่งสาธารณะ
เดิน 1 นาทีจากสถานี “Gion-Shijo” (ทางออก 1) สายหลัก Keihan
เดิน 5 นาทีจากสถานี “Kawaramachi” (ทางออก 1B) สาย Hankyu Kyoto
จากสถานี JR Kyoto (ทางออกกลาง/ทางออก Karasuma)
โดยแท็กซี่ประมาณ 12 นาที
โดยรถประจำทางเมืองสาย 4, 17, 205 ลงป้ายรถเมล์ “Shijo Kawaramachi” แล้วเดิน 5 นาที (จากสถานี Kyoto ใช้เวลาประมาณ 20 นาที)
■การเดินทางโดยรถยนต์
มาจากฝั่งโตเกียว: ทางด่วน Meishin ออกที่ทางออก Kyoto-Higashi IC ประมาณ 20 นาที
มาจากฝั่งโอซาก้า: ทางด่วน Meishin ออกที่ทางออก Kyoto-Minami IC ประมาณ 20 นาที
※โรงแรมไม่มีที่จอดรถ หากเดินทางมาโดยรถยนต์ กรุณาใช้บริการลานจอดรถแบบหยอดเหรียญในบริเวณใกล้เคียง
※หากต้องการข้อมูลลานจอดรถแบบหยอดเหรียญใกล้เคียง กรุณาติดต่อโรงแรม
- ข้อมูลที่จอดรถ
- ไม่มี
- ข้อมูลการรับส่ง
- ไม่มี
คำถามที่พบบ่อย
มีสิ่งอำนวยความสะดวกหรือคุณสมบัติอะไรบ้าง?
มีสิ่งอำนวยความสะดวกและลักษณะดังต่อไปนี้ ให้เช่าทั้งหลัง・มีห้องครัว・มีบริการทำความสะอาดระหว่างการเข้าพักหลายคืน・มีเครื่องซักผ้า・หลายห้องนอน・อยู่ในระยะเดินถึงจากสถานีรถไฟ・สามารถนำอาหารเข้ามาได้
ฉันต้องการทราบข้อมูลการเข้าถึง
■การเดินทางด้วยระบบขนส่งสาธารณะ เดิน 1 นาทีจากสถานี “Gion-Shijo” (ทางออก 1) สายหลัก Keihan เดิน 5 นาทีจากสถานี “Kawaramachi” (ทางออก 1B) สาย Hankyu Kyoto จากสถานี JR Kyoto (ทางออกกลาง/ทางออก Karasuma) โดยแท็กซี่ประมาณ 12 นาที โดยรถประจำทางเมืองสาย 4, 17, 205 ลงป้ายรถเมล์ “Shijo Kawaramachi” แล้วเดิน 5 นาที (จากสถานี Kyoto ใช้เวลาประมาณ 20 นาที) ■การเดินทางโดยรถยนต์ มาจากฝั่งโตเกียว: ทางด่วน Meishin ออกที่ทางออก Kyoto-Higashi IC ประมาณ 20 นาที มาจากฝั่งโอซาก้า: ทางด่วน Meishin ออกที่ทางออก Kyoto-Minami IC ประมาณ 20 นาที ※โรงแรมไม่มีที่จอดรถ หากเดินทางมาโดยรถยนต์ กรุณาใช้บริการลานจอดรถแบบหยอดเหรียญในบริเวณใกล้เคียง ※หากต้องการข้อมูลลานจอดรถแบบหยอดเหรียญใกล้เคียง กรุณาติดต่อโรงแรม
ที่จอดรถมีไหม?
ไม่มีที่จอดรถ
กรุณาแจ้งข้อมูลของ ห้องอาบน้ำส่วนตัว
・เวลาทำการ: 00:00~24:00 ・น้ำพุร้อน: ไม่มี ・ไหลผ่านตลอด: ไม่มี ・น้ำพุร้อนขุ่น: ไม่มี
สามารถเชื่อมต่ออินเทอร์เน็ตได้หรือไม่?
เชื่อมต่อได้ ・มีบริการไวไฟ สำหรับรายละเอียดเพิ่มเติม กรุณาดูข้อมูลห้องพักและแผนการ










