Stasiun Kintetsu Tonda × Rekomendasi Hotel·penginapan gaya Jepang - 3Halaman 目
Rumah sewa satu unit di pusat kota! Anda dapat bersantai bersama keluarga atau teman-teman Anda. Kamar 4DK ini berjarak 7 menit berjalan kaki dari Stasiun Kintetsu Yokkaichi. Lokasinya sangat dekat dengan pusat perbelanjaan dan pasar tradisional, sehingga sangat nyaman untuk wisata dan berbelanja. Tersedia satu tempat parkir gratis di dalam area properti. 7 menit berjalan kaki dari Stasiun Kintetsu Yokkaichi. 14 menit berjalan kaki dari Stasiun JR Yokkaichi. 9 menit berjalan kaki dari Stasiun Asunarou Yokkaichi. 20 menit berkendara dari Yokkaichi Higashi IC. 5 menit berjalan kaki ke minimarket. 7 menit berjalan kaki ke supermarket (Ichigokan). 9 menit berjalan kaki ke pusat perbelanjaan. 35 menit berkendara ke Nagashima Spa Land. 50 menit berkendara ke Sirkuit Suzuka. Tentang membawa hewan peliharaan: ・Jika membawa hewan peliharaan, biaya tambahan sebesar 3,000 yen per ekor akan dikenakan. Harap informasikan saat Pemesanan. ・Jika membawa lebih dari satu hewan peliharaan, harap beri tahu kami setelah Selesaikan Reservasi. ・Untuk anjing, diperbolehkan hingga 3 ekor anjing kecil atau 1 ekor anjing besar. ・Hewan peliharaan selain anjing (kucing, burung kecil, reptil) juga diperbolehkan, dengan biaya yang sama.
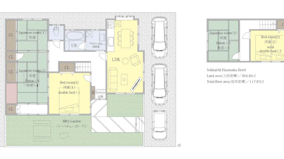
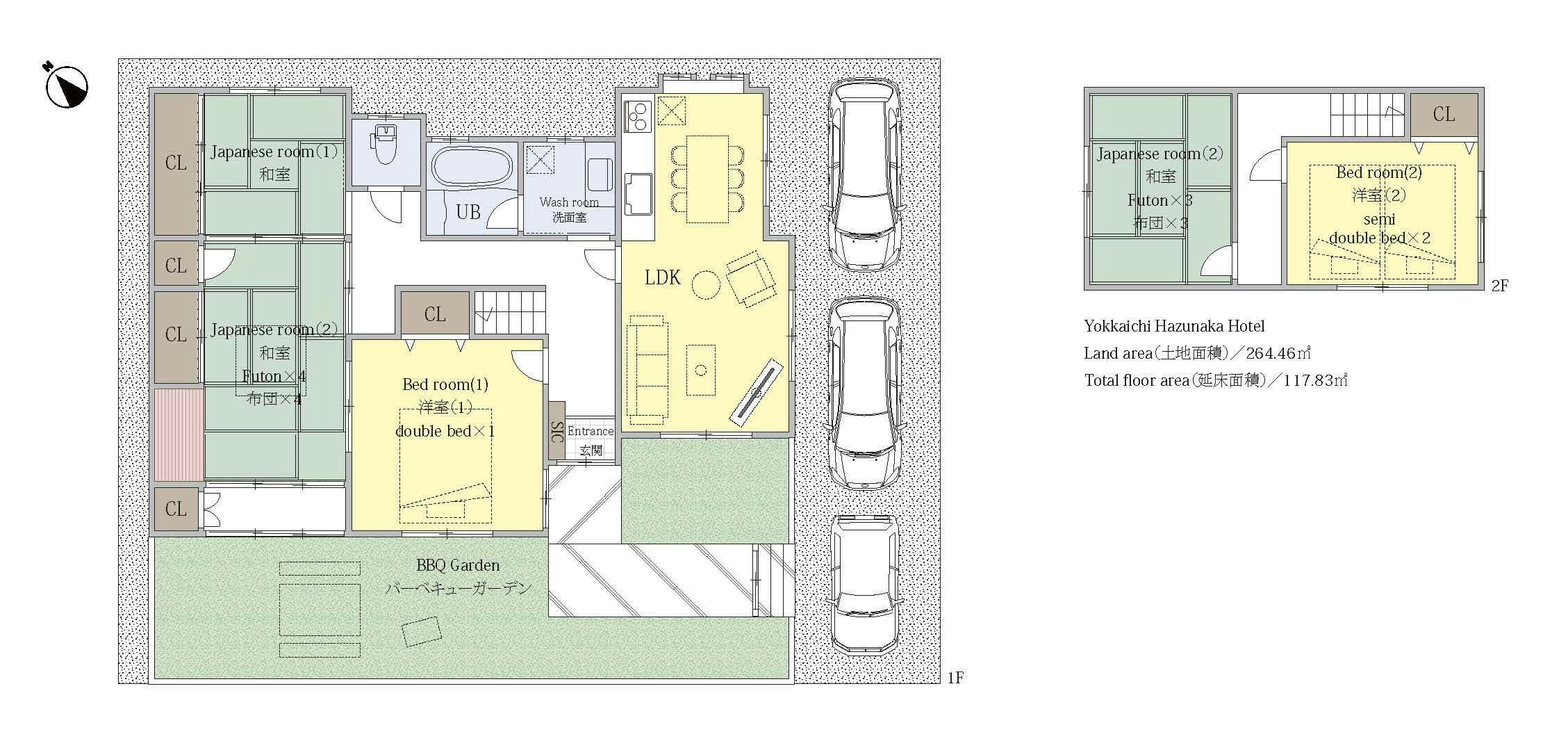
Sebuah rumah besar di Yokkaichi-shi, Hazunaka! Vila tipe sewa eksklusif, dapat menampung hingga 11 orang. Nikmati BBQ di taman yang luas. 〇 Peralatan dapur telah kami sediakan secara lengkap. Peminjaman gratis untuk BBQ grill. (Harap membawa arang, bahan makanan, dan alat pemantik sendiri.) Rumah dengan 5LDK, terdiri dari 2 Kamar bergaya Barat dan 3 Kamar bergaya Jepang, disewakan secara eksklusif. 〇 Lokasi yang sangat nyaman untuk wisata maupun menginap. ・21 menit berkendara ke Nagashima Spa Land. ・22 menit berkendara ke Nabana no Sato. ・45 menit berkendara ke Sirkuit Suzuka. ・Toko serba ada dan supermarket dapat dijangkau dengan berjalan kaki, sangat praktis. 〇 Tentang Barbekyu ・Silakan gunakan BBQ grill sesuka Anda. ・Harap membawa arang, bahan makanan, dan alat pemantik sendiri. ・Pastikan untuk memadamkan api dengan benar setelah selesai. ・Setelah menggunakan grill, harap bersihkan untuk kenyamanan tamu berikutnya. 〇 Tentang membawa hewan peliharaan ・Jika membawa hewan peliharaan, akan dikenakan biaya sebesar 3,000 yen per ekor. Harap informasikan saat Pemesanan. ・Jika membawa lebih dari satu hewan peliharaan, harap beri tahu kami setelah Selesaikan Reservasi. ・Untuk anjing, maksimal 3 ekor untuk anjing kecil, dan 1 ekor untuk anjing besar. ・Hewan peliharaan selain anjing (kucing, burung kecil, reptil) juga diperbolehkan, dengan biaya yang sama.
Berjarak sekitar 6 menit berjalan kaki dari Stasiun Kintetsu Yokkaichi. Akses yang mudah ke tempat-tempat terkenal seperti "Yokkaichi Port Building Umiterasu 14," yang dikenal sebagai surga pemandangan malam pabrik, dan "Museum Kota Yokkaichi" untuk mempelajari sejarah kota ini, menjadikannya pilihan sempurna tidak hanya untuk bisnis tetapi juga sebagai basis rekreasi.Di dalam fasilitas, terdapat pemandian besar dengan Mata air panas alami. Sauna kering bersuhu tinggi dilengkapi dengan auto löyly dan ruang relaksasi udara terbuka, memungkinkan Anda menikmati waktu sauna dengan nyaman. Setelah mandi, tersedia layanan gratis seperti "es krim" dan "minuman probiotik," serta ramen khas berkuah kecap ringan "Yonaki Soba" di malam hari.Sarapan disajikan dalam bentuk prasmanan Jepang dan Barat yang mencakup hidangan lokal seperti "Yokkaichi Tonteki" serta berbagai hidangan kecil berbahan musiman.


























