
1日1組限定 愛犬と過ごす、森と空と時間を独占する大人の隠れ家
都心から車で約1時間半、神奈川県足柄上郡松田町・寄(やどりき)の静かな森に佇む、一日一組限定のドッグラン付き貸別荘です。約1,000平米の敷地に広がるプライベートドッグランと、杉材を中心に自然素材でできた平屋建て。大開口の窓からウッドデッキがひと続きになり、愛犬と一緒に森と空を独占するような時間をお過ごしいただけます。清流・中津川へのお散歩や川のせせらぎを聞きながらの夕暮れ、星空を眺めてワインを傾けるひとときなど、シニア世代のご夫婦が周囲に気兼ねなく心身を休められる、大人のための隠れ家です。記念日や節目の旅として、愛犬との写真撮影や連泊でのんびり過ごすご利用にもおすすめです。季節ごとに変わる山々の彩りもお楽しみください。ごゆっくりお寛ぎを。
クチコミ
施設・サービス
すべてみる- ペット可
- バリアフリー
| IN | 15:00~18:00 |
|---|---|
| OUT | 10:00 |
| 客室数 | 1室 |
| ペット | 可 |
| お子様 | 不可 |
写真
すべてみるこの宿に泊まった人がよく泊まる宿
お客様からの評価が高い宿
美食を叶える宿
ゆったりと部屋食を愉しむ宿
露天風呂付き客室が人気の宿
絶景が人気の宿
大浴場が人気のホテル
温泉自慢の宿
露天風呂が人気の宿
客室10室以下の隠れ宿
宿のご紹介
“自然と調和する別邸”へようこそ
都心から車で約 1 時間半。神奈川県足柄上郡松田町•寄(やどりき)の静かな森に仲む「holohouse」は、一日一組限定の、愛犬と一緒に泊まれる平屋一棟貸し。周囲の視線や音を気にせず、山々の稜線と木立に包まれた贅沢な時間をお過ごしください。





板塀と植栽に囲まれたドッグランは、外からの視線や物音を気にせず過ごせる“わが家の庭”のような空間。やわらかな天然芝は走る・転がる・匂いを嗅ぐ 犬本来の時間を思いきり楽しめます。テラスや室内の大開口 から愛犬の様子を見守れるので、飼い主はコーヒー片手にのんびり。夕暮れや星空の下では、森の静けさとともに特別なひとときに。






halo house は、寄の里山の風景に同化するよう、内外に杉を中心とした自然素材をふんだんに用いた木造 平屋です。ふわりと漂う杉の香り、シラス壁のやわらかな表情、十和田石のひんやりとした質感が、心をすっと 落ち着かせてくれます。南側の全開口の窓の向こうに広がる寄の大自然とともに、自然素材に包まれる心地よさをぜひ体感してください。

SITE MAP
敷地は大きく 「プライベートドッグラン」 と 「駐車スペース」 に分かれています。建物の南西側に広がるド ッグランは一日一組限定で貸切。ウッドテラスからそのままお庭へ出られるため、愛犬を遊ばせながら室内・テラスでゆったりお過ごしいただけます。駐車スペースはゆったり 2 台分をご用意。駐車後はアプローチを通って玄関へお進みください。その際、愛犬の安全のため、出入口扉の開閉を確実にお願いいたします。

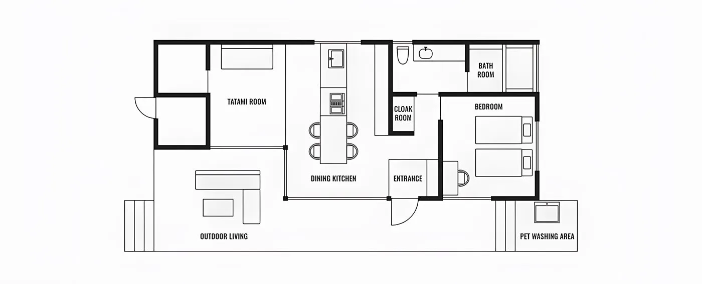
FLOOR PLAN
holohouse は平屋ワンフロアのため、移動がしやすいシンプルな動線です。中心のダイニングキッチンから、和室・寝室・浴室へスムーズに行き来できます。ダイニングからはガラス越しにアウトドアリビング(テラス)へつながり、庭の気配を感じながらくつろげる開放的な設計。屋外にはペット洗い場も備え、散歩やドッグランの後も快適です。
宿の施設・設備
- お部屋
- 周辺・他
基本情報
| カード情報 | 現地でのクレジットカード決済不可 |
|---|---|
| ペット | 可 当施設では杉の床板、シラス壁といった自然素材を使用しております。
汚れが落としづらい、傷がつきやすいといったリスクはありますが、温かみや心地良さを感じていただくことを最優先に考えました。
愛犬の同伴は、室内で粗相をさせない、暴れさせないといったことをお約束いただけるお客様に限らせていただきます。
全てのお客様に気持ちよくお過ごしいただくために、必ずholohouse公式サイトの愛犬利用規約をお読みください。
ご予約時に愛犬同伴のオプションをご選定ください。 |
| 朝食 | 卵と蒸し鶏のホットサンド 黒糖カルダモンチャイ ブルーベリーヨーグルト お野菜一品(手作りポテトサラダ等その時々の食材で1品) |
| お子様 | ご宿泊いただけません |
| ルームサービス | ご利用いただけません |
| 共通アメニティ |
|
| 設備・特徴 |
|
| エステ・マッサージ | なし |
| フィットネスジム | なし |
| サウナ | なし |
| 岩盤浴 | なし |
| その他 | 等施設は山間部にあるため、住所では表示されません。Googleマップで「holohouse」と検索してください。 |
クチコミ
規定のクチコミ件数に達していない為、施設総合点数を非表示としています
アクセス情報
神奈川県足柄上郡松田町寄1358
TEL:090-8000-2617
東名高速道路大井松田インターから車で16分 新東名高速道路新秦野インターから車で14分
当施設は山間部にあるため、住所では表示されません。Googleマップで「holohouse」と検索してください。
- 駐車場情報
- 料金
- 宿泊者無料
- 駐車時間
- ---
- 駐車スペース
- 制限なし
- 駐車場台数
- 2 台 屋外
- バレーサービス
- なし
- 送迎情報
- なし
よくある質問
どのような設備や特徴がありますか?
以下のような設備や特徴があります。 一棟貸切・キッチンあり・連泊中清掃サービスあり・寝室複数・駐車場あり・食事サービスあり・食料品の持込可・バリアフリー・ペット可
アクセス情報が知りたいです。
東名高速道路大井松田インターから車で16分 新東名高速道路新秦野インターから車で14分 当施設は山間部にあるため、住所では表示されません。Googleマップで「holohouse」と検索してください。
駐車場はついていますか?
・料金: 宿泊者無料 ・駐車場スペース: 車長 --- 車幅 --- 車高 --- ・駐車場台数: 2台 ・バレーサービス: なし
ネット接続は可能ですか?
接続可能です。 ・wi-fiが利用可能です。 詳しくは、部屋・プラン情報をご覧ください









